Thiết kế tòa nhà văn phòng hiện đại tại Phần Lan
Wiki

Thiết kế tòa nhà văn phòng hiện đại tại Phần Lan

Lê Nhi

Paf là một công ty phát triển trò chơi, có trụ sở chính tại Åland, Phần Lan với hệ thống văn phòng trên khắp châu Âu. Hiện tại, Paf ở Åland có tất cả 200 nhân viên đang làm việc trong một tòa nhà rộng 2.500m2.

Tòa nhà văn phòng của Paf tại Åland, Phần Lan
Tòa nhà văn phòng của Paf tại Åland, Phần Lan
Sảnh tầng 1 tiếp khách khá hiện đại, sang trọng
Sảnh tầng 1 tiếp khách khá hiện đại, sang trọng

Tòa nhà được thiết kế và xây dựng theo kiểu thụ động với hệ thống pin mặt trời trên mái. Tức là, công trình không yêu cầu hoặc yêu cầu rất ít phải sử dụng đến năng lượng cho sự hoạt động của các thiết bị làm mát và sưởi ấm. Nói cách khác, thiết kế này tận dụng ưu thế của dòng năng lượng và vật liệu để duy trì sự dễ chịu về nhiệt độ. 

Tòa nhà có cấu trúc dạng uốn cong khá đặc biệt. Tầng trệt có diện tích rộng nhất, càng lên cao không gian càng trở nên nhỏ hơn nhưng vẫn đủ rộng để các nhân viên làm việc cũng như nghỉ ngơi, thư giãn một cách thoải mái. Tại đây, văn phòng cho phép mọi người có thể làm việc độc lập riêng lẻ hoặc theo nhóm tùy thích, miễn là mang lại hiệu quả công việc tốt. Nội thất chủ yếu sử dụng gam màu trắng để tận dụng nhiều hơn nguồn ánh sáng tự nhiên.

Cấu trúc tòa nhà theo dạng vòm cong, càng lên cao diện tích càng thu hẹp hơn
Cấu trúc tòa nhà theo dạng vòm cong, càng lên cao diện tích càng thu hẹp hơn
Toàn bộ cấu trúc nội thất được làm từ chất liệu gỗ glulam
Khu vực quảng trường tại tầng trệt của tòa nhà khá rộng rãi, dành cho hội thảo,
thuyết trình… 
Có rất nhiều không gian để nhân viên ngồi làm việc nhóm hoặc độc lập tùy thích
Có rất nhiều không gian để nhân viên ngồi làm việc nhóm hoặc độc lập tùy thích

Với mục tiêu an toàn, thân thiện với môi trường nên toàn bộ kết cấu tòa nhà được làm từ gỗ glulam, thay thế cho thép và bê tông. Khi gặp nhiệt độ cao, khác với thép, gỗ glulam hình thành nên lớp cách nhiệt bảo vệ các kết cấu bên trong vì thế công trình vẫn có thể đứng vững dưới một tải trọng khá nặng. Bên cạnh đó, việc thi công cũng dễ dàng hơn bởi glulam có trọng lượng nhẹ, không cong vẹo, không chìm hay nứt. Bao quanh tòa nhà là lớp kính dày, mang lại không gian tràn ngập ánh sáng, khơi gợi hứng khởi làm việc một cách tích cực.

Những ô cửa sổ được thiết kế để mang lại nhiều ánh sáng cho không gian làm việc
Những ô cửa sổ được thiết kế để mang lại nhiều ánh sáng cho không gian làm việc
Nhìn từ ngoài vào, khung cửa sổ giống như những mỏ cần cẩu khá thú vị
Nhìn từ ngoài vào, khung cửa sổ giống như những mỏ cần cẩu khá thú vị  

Với phương thức làm việc “Scrum” (phát triển phần mềm theo hướng linh hoạt với sự đề cao của làm việc nhóm), tòa nhà thiết kế khá nhiều phòng họp có sức chứa từ 4-8 người. Các phòng họp nhóm được ngăn cách bằng các bức tường kính nhẹ có thể tháo rời hoặc di chuyển một cách linh hoạt.

Phòng họp chính được bố trí thiết bị hiện đại phục vụ nhu cầu công việc
Phòng họp chính được bố trí thiết bị hiện đại phục vụ nhu cầu công việc
Phòng họp nhỏ có sức chứa từ 4-8 người, ngăn cách nhau bởi tấm kính nhẹ
Phòng họp nhỏ có sức chứa từ 4-8 người, ngăn cách nhau bởi tấm kính nhẹ
Khu vực vệ sinh được lát đá cẩm thạch Carrara tinh tế
Khu vực vệ sinh được lát đá cẩm thạch Carrara tinh tế

Mỗi phòng đều có bàn họp nội bộ, bảng viết ý tưởng và màn hình tivi lớn phục vụ nhu cầu công việc. Đối với nhân viên, tất cả được trang bị bộ bàn ghế cùng máy tính cá nhân đầy đủ. Ngoài ra, do đặc thù công việc phải diễn thuyết, họp báo hay hội thảo, các kiến trúc sư phụ trách thiết kế tòa nhà đã đặt một quảng trường rộng ở trung tâm tòa nhà để bất cứ ai ở vị trí nào của tòa nhà cũng có thể theo dõi được.

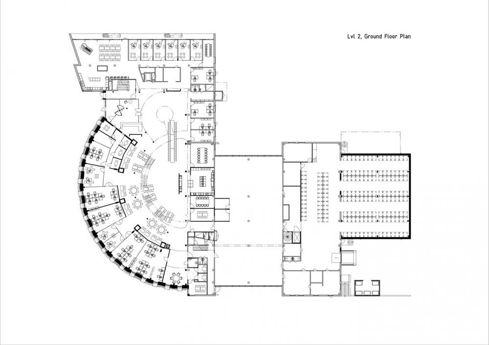
Sơ đồ thiết kế tầng 2 của tòa nhà Paf
Sơ đồ thiết kế tầng 2 của tòa nhà Paf
Sơ đồ thiết kế tầng 3 của tòa nhà Paf
Sơ đồ thiết kế tầng 3 của tòa nhà Paf
Thiết kế tầng 4 của tòa nhà Paf
Thiết kế tầng 4 của tòa nhà Paf
Hệ thống thiết kế mái tòa nhà Paf
Hệ thống thiết kế mái tòa nhà Paf
Thiết kế tổng thể của tòa nhà Paf
Thiết kế tổng thể của tòa nhà Paf

Hải Linh (dịch)

Related Posts
Thách Thức Lãi Suất Với Người Mua Nhà: Nên Mua Ngay Hay Chờ Đợi?Th01 10, 2026
Thách Thức Lãi Suất Với Người Mua Nhà: Nên Mua Ngay Hay Chờ Đợi?

Bước sang năm 2026, giấc mơ sở hữu "ngôi nhà đầu tiên" của giới công sở đang đứng trước một nghịch l...

Tìm Hiểu Khu Công Nghiệp Bình Xuyên Và Thị Trường Bất Động Sản Khu Vực Lân CậnTh12 31, 2025
Tìm Hiểu Khu Công Nghiệp Bình Xuyên Và Thị Trường Bất Động Sản Khu Vực Lân Cận

Khu công nghiệp Bình Xuyên, Phú Thọ (trước đây thuộc tỉnh Vĩnh Phúc) được định hướng xây dựng thành...

Lãi Suất Vay Mua Nhà Ngân Hàng KBank Mới Nhất Tháng 12/2025Th12 26, 2025
Lãi Suất Vay Mua Nhà Ngân Hàng KBank Mới Nhất Tháng 12/2025

KBank (Kasikornbank) hiện là một trong những ngân hàng ngoại có chính sách vay mua nhà cạnh tranh nh...

https://web.facebook.com/anphatland.com.vn
https://www.tiktok.com/@chungcutienich
https://zalo.me/2204319189419912916
0901411555