Yêu cầu:
Chúng tôi rất mong kiến trúc sư tư vấn xây một ngôi nhà 4 tầng trên mảnh đất này cho đại gia đình ba thế hệ, gồm 7 thành viên. Không gian mà chúng tôi mong muốn là yên tĩnh, thông thoáng, an toàn và tiết kiệm chi phí.
Tôi cũng rất yêu thích những ngôi nhà thiết kế theo phong cách cổ điển.
(Hào)
Trả lời
Bố trí giếng trời, cây xanh, cầu thang và toilet tại các góc xéo, gấp khúc của miếng đất là giải pháp tối ưu nhất, giúp ngôi nhà không những thông thoáng mà còn đảm bảo sự vuông vắn cho các khu chức năng.
Với trường hợp miếng đất của anh Hào nói riêng và những nhà có đất dính lộ giới nói chung, nên sử dụng phần diện tích lộ giới hiện tại để bố trí sân vườn, để ngôi nhà yên tĩnh và thoáng mát hơn.

Do ngôi nhà nằm gần chợ và kề lộ giới nên phía mặt tiền có thể
tạo một “lớp áo” bằng gạch bông gió, giúp che nắng mã vẫn
đón được gió vào bên trong

Do gia đình có 1 thành viên phải đi xe lăn nên tầng 1 ngoài phòng khách còn
có một phòng ngủ. Để tránh ngập khi mưa lớn, nền nhà được nâng cao
60 cm so với mặt đường và cao hơn sân 30 cm.

Tại các góc xéo, gấp khúc, kiến trúc sư bố trí sân vườn và giếng trời, đem ánh
sáng tự nhiên đến các không gian. Ngoài sân có các chậu cây xanh vừa thuận
tiện chăm sóc vừa giúp tăng khoảng xanh.

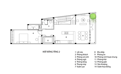
Phòng bếp và khu vực sinh hoạt chung được đưa lên tầng 2, thuận tiện để
cả gia đình quây quần bên nhau ăn uống, trò chuyện

Phòng ngủ ông bà thiết kế đơn giản, ấm áp và có một khoảng
giếng trời nhỏ cung cấp ánh sáng buổi sớm

Phòng ngủ chính của vợ chồng chủ nhà với góc nhỏ kê tủ quần áo và bàn trang điểm.
Căn phòng có thêm một bộ sofa để ngồi thư giãn, xem chương trình giải trí.

Phòng vệ sinh khá nhỏ nên được thiết kế rất đơn giản, gồm toilet và buồng
tắm đứng giúp giảm chi phí xây dựng và tiết kiệm diện tích

Phòng thờ bố trí ở khu vực phía trước sân thượng đảm bảo tách biệt và yên tĩnh

Những ô cửa vòm cong mang lại nét đẹp cổ điển cho ngôi nhà
Vì nguyện vọng của chủ nhà muốn nơi ở mang phong cách cổ điển, nên kiến trúc sư gợi ý áp dụng phong cách Đông Dương với các ô cửa vòm cong kết hợp cùng những hình khối thẳng, đơn giản. Ngoài ra, rải rác ở các khu vực chức năng là những mảng trang trí bằng gạch bông gió, gạch bông nhiều màu sắc, gạch đất nung hay đồ nội thất gỗ với tông màu nâu quen thuộc… cũng mang lại nét đẹp truyền thống cho nơi ở.

Thiết kế mặt bằng tầng 1 nhà phố trên đất méo

Thiết kế mặt bằng tầng 2

Thiết kế mặt bằng tầng 3

Thiết kế mặt bằng tầng 4
Th12 13, 2025Khi một hợp đồng thuê nhà kết thúc, hoặc khi các bên liên quan quyết định thanh lý hợp đồng trước th...
Th12 10, 2025Thông tin Vingroup làm đường sắt Hà Nội - Quảng Ninh đang tạo nên một cơn sốt thực sự trên thị trườn...
Th12 05, 2025Theo quan niệm tử vi phong thủy, mỗi năm trôi qua sẽ có những con giáp nhận được sự hỗ trợ của các c...