
Mặt tiền ấn tượng của ngôi nhà với phần mái vát nhọn, khung cửa sổ độc đáo

Do ngôi nhà có diện tích khá nhỏ hẹp nên KTS Lê Minh Đức và các cộng sự (Aline Architect) đã thiết kế
những khung cửa sổ lớn được đặt ở mặt tiền các tầng nhằm hút gió và ánh sáng

Ngôi nhà nằm ở hướng Tây nên các KTS phải đưa ra phương pháp chống nóng 3 lớp gồm: Lớp tường ngoài
cùng dày nhằm chống ánh nắng trực tiếp; lớp thứ 2 là đệm cây xanh cản bụi, cấp oxi và đẩy không khí
nóng ra ngoài; lớp thứ 3 là lớp cửa kính lấy sáng và cản nhiệt gián tiếp vào nhà

Cách thiết kế lệch tầng đã giúp làm nhòa đi ranh giới giữa trên và dưới, làm mất đi cảm giác
nhà nhiều tầng (5 tầng) và tạo sự kết nối với nhau một cách liền mạch

Chiếu nghỉ của cầu thang được kết hợp làm sảnh của các phòng, vừa giúp tiết kiệm diện tích,
vừa tạo được cảm giác riêng tư cho các thành viên trong nhà

Các KTS còn đưa thiên nhiên vào trong nhà để góc nào cũng nhìn thấy ít nhất một cây xanh,
có tác dụng vừa làm “mềm” không gian, vừa tạo cảm giác thư thái, nhẹ nhàng

Cầu thang được làm chủ yếu từ khung sắt, mặt gỗ tạo cảm giác thanh thoát, gọn gàng

Ánh sáng và gió tràn ngập vào tất cả các không gian, mang lại cảm giác thông thoáng cho ngôi nhà

Các không gian trong nhà được bố trí khéo léo, tiết kiệm diện tích và tiện dụng nhất có thể




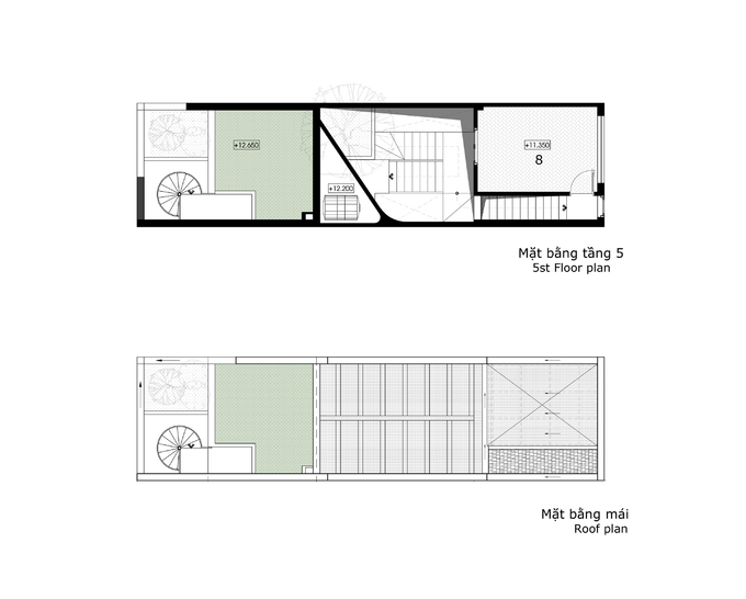
Sơ đồ thiết kế ngôi nhà
Th12 13, 2025Khi một hợp đồng thuê nhà kết thúc, hoặc khi các bên liên quan quyết định thanh lý hợp đồng trước th...
Th12 10, 2025Thông tin Vingroup làm đường sắt Hà Nội - Quảng Ninh đang tạo nên một cơn sốt thực sự trên thị trườn...
Th12 05, 2025Theo quan niệm tử vi phong thủy, mỗi năm trôi qua sẽ có những con giáp nhận được sự hỗ trợ của các c...