Chủ nhà vốn là doanh nhân thành đạt và từng trải nên có quan niệm kiến trúc vô cùng độc đáo. Hai vợ chồng có sự khác biệt trong quan niệm về nhà ở. Người chồng thích sự độc đáo, mới lạ còn người vợ lại đề cao những thứ thiết thực và tiện lợi. Hai quan điểm vừa mâu thuẫn, vừa bổ sung cho nhau tạo nguồn cảm hứng cho kiến trúc sư Trần Lê Quốc Bình trong thiết kế biệt thự.
Kết quả là ngôi nhà đã có một sự dung hòa thú vị: phần kiến trúc và diện mạo bên ngoài cực kỳ độc đáo theo như mong muốn của người chồng, trong khi mọi công năng bên trong lại thỏa mãn tiêu chí mà người vợ đặt ra.

Tổng thể căn biệt thự sang trọng khi nhìn từ bên ngoài.

Cảnh quan bên trong biệt thự vào buổi tối.

Thảm cỏ, cây xanh tôn lên vẻ đẹp của căn biệt thự màu trắng.
![]() |
| Yếu tố nước trong cảnh quan gồm hồ bơi và hồ cá. |

Hồ cá.

Cầu thang dẫn lên tầng trên.

Khu vực ăn uống cùng góc tiếp khách nhìn thẳng ra hồ bơi.

Đèn chùm hình tổ chim cùng thang máy ốp gỗ khiến người ta liên tưởng tới thân cây.

Sự kết hợp màu sắc vô cùng ấn tượng.
![]() |
| Phòng bếp rộng rãi, ngập tràn ánh sáng tự nhiên. Các vật liệu ốp lát đều sáng bóng, dễ vệ sinh và tạo cảm giác sạch sẽ, đây là những tiêu chí mà nữ chủ nhân đặc biệt quan tâm. |

Góc nhìn độc đáo từ bên ngoài vườn vào khu ăn uống.

Phòng giải trí đa năng với nhiều thiết bị hiện đại.

Phòng ngủ của bố mẹ có bàn làm việc bên cạnh.

Phòng thay đồ rộng rãi.

Khu vệ sinh, tắm rửa.

Phòng của hai con.

Giường ngủ được đẩy lên cao.

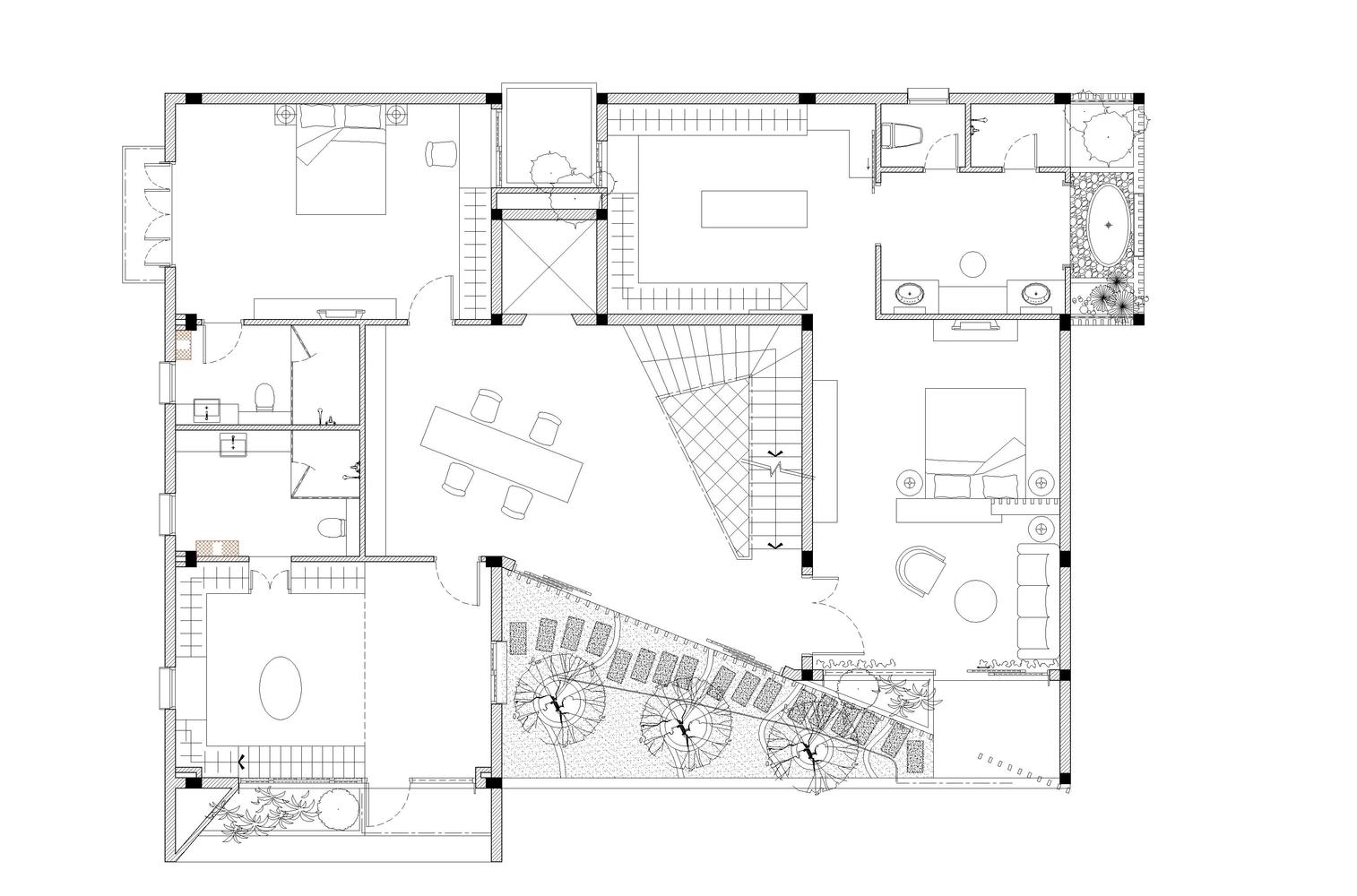
Mặt bằng tầng trệt.

Mặt bằng lầu 1.

Mặt bằng lầu 2.

Mặt bằng sân thượng.

Mặt đứng trước.

Mặt bên.
Minh Châu
http://thanhnienviet.vn/2020/02/10/biet-thu-sang-trong-thoa-man-yeu-cau-trai-nguoc-nhau-cua-vo-chong-chu-nha
Th12 13, 2025Khi một hợp đồng thuê nhà kết thúc, hoặc khi các bên liên quan quyết định thanh lý hợp đồng trước th...
Th12 10, 2025Thông tin Vingroup làm đường sắt Hà Nội - Quảng Ninh đang tạo nên một cơn sốt thực sự trên thị trườn...
Th12 05, 2025Theo quan niệm tử vi phong thủy, mỗi năm trôi qua sẽ có những con giáp nhận được sự hỗ trợ của các c...