Phong cách hiện đại đã mang đến diện mạo mới cho căn Duplex ở Hà Nội. Phong cách thiết kế lấy ánh sáng làm điểm nhấn, chú trọng đến sự tiện nghi và thoải mái. Tông màu nâu gỗ của nội thất kết hợp cùng ánh sáng tự nhiên một cách hài hòa tạo nên vẻ đẹp trang nhã, tinh tế cho ngôi nhà.
Căn hộ Duplex gồm 2 tầng với tầng 1 dành để bố trí phòng khách, không gian thờ cúng, bếp kết hợp phòng ăn và 2 phòng ngủ. Tầng 2 là phân khu phòng ngủ của các thành viên trong gia đình.

Sơ đồ bố trí mặt bằng tầng 1.

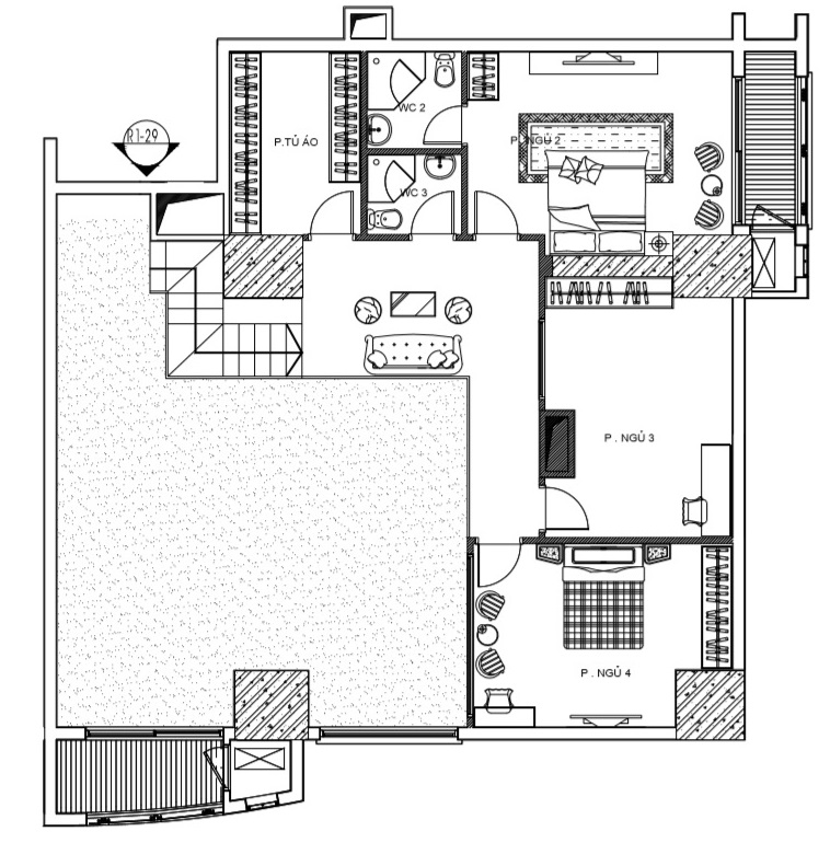
Sơ đồ bố trí mặt bằng tầng 2.

Không gian tiền sảnh được thiết kế đơn giản nhưng rất hiện đại.

Góc tiếp khách được đặt cạnh khung cửa ngập nắng nhằm tận dụng tối đa ánh sáng tự nhiên vào ban ngày.

Khu vực ăn uống gây ấn tượng với đèn chùm pha lê trang trí cầu kỳ.
![]() |
| Cửa kính lùa được sử dụng để phân chia bếp với các không gian còn lại nhằm hạn chế mùi dầu mỡ, thức ăn ám vào phòng khách mà không cản trở ánh sáng tự nhiên. |
![]() |
| Phòng ngủ master rộng rãi, được tích hợp phòng thay đồ và phòng tắm riêng. |

Căn hộ có lợi thế là mọi phòng ngủ đều sở hữu mặt thoáng và tầm nhìn đẹp, tôn lên thiết kế nội thất bên trong.
KTS. Nguyễn Quang Đạt
Công ty tư vấn thiết kế – thi công kiến trúc nội thất CentiHome
Th12 13, 2025Khi một hợp đồng thuê nhà kết thúc, hoặc khi các bên liên quan quyết định thanh lý hợp đồng trước th...
Th12 10, 2025Thông tin Vingroup làm đường sắt Hà Nội - Quảng Ninh đang tạo nên một cơn sốt thực sự trên thị trườn...
Th12 05, 2025Theo quan niệm tử vi phong thủy, mỗi năm trôi qua sẽ có những con giáp nhận được sự hỗ trợ của các c...