![]() |
| Nhà xây trên mảnh đất xéo, diện tích không lớn nên cần được tối đa hóa nhằm tận dụng mọi không gian, đồng thời tạo cảm giác rộng rãi hơn so với diện tích thực tế. |
![]() |
| Bên cạnh đó, khi một không gian mở được tạo ra, tất cả các phòng trong nhà đều được kết nối với ban công, giếng trời chiếm 1/3 diện tích nhà. Không gian này, kết hợp với cây xanh trở nên cực kỳ giá trị khi đóng vai trò như một lá phổi tự nhiên hoạt động liên tục suốt cả ngày. |
![]() |
| Khí hậu khắc nghiệt miền Trung đặt ra thách thức trong việc tối đa hóa việc tiếp xúc với ánh sáng nhưng phải hạn chế nhiệt lượng mà nó sinh ra. |
![]() |
| Để giải quyết vấn đề này, ngoài việc sử dụng vật liệu thô, màu sắc trung tính, ngôi nhà còn được bố trí những ô cửa nhỏ bao quanh bởi những cây xanh biến nó thành những chiếc hộp điều hòa lớn. |

Góc tiếp khách xinh xắn với bộ bàn ghế đơn giản và tất nhiên không thể thiếu hoa cúc tana.

Khu vực nấu ăn với hệ tủ bếp màu xanh ấn tượng.
![]() |
| Phòng ngủ đơn giản, thoáng sáng vô cùng. Việc sử dụng các chất liệu tự nhiên như gỗ, mây tre đan mang tới cảm giác nhẹ nhàng, thanh thoát, tôn vinh lối sống hòa hợp với thiên nhiên. |

Cánh cửa mở ra kết nối phòng ngủ với ban công và với khoảng thông tầng.

Chiếc máy khâu cổ vẫn còn tốt, đóng vai trò như vật trang trí.

Tấm chắn giếng trời được cách điệu từ hình hoa cúc. Gam màu vàng sống động lấy cảm hứng từ nhụy hoa.
![]() |
| Bạn sẽ cực kỳ ngạc nhiên khi sống trong ngôi nhà này bởi khả năng tiết kiệm năng lượng của nó. Tất cả những thứ mà thiên nhiên ban tặng cho con người như nắng, gió, cây cối đều được đưa vào thiết kế cho phép chủ nhà tận hưởng không gian sống một cách hợp lý và thoải mái nhất. |

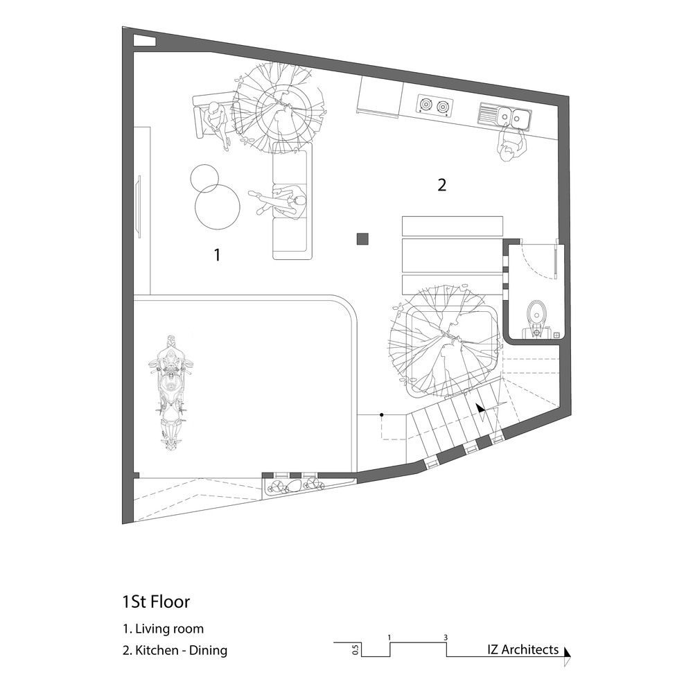
Sơ đồ bố trí mặt bằng tầng 1.

Sơ đồ bố trí mặt bằng tầng 2.

Bản vẽ 3D mặt cắt nhà.

Sơ đồ phối cảnh các không gian chức năng trong nhà.
Minh Châu (dịch từ Archdaily)
Link báo gốc: http://thanhnienviet.vn/2020/01/03/khong-gian-song-de-thuong-cua-nu-chu-nhan-yeu-hoa-cuc
Th12 13, 2025Khi một hợp đồng thuê nhà kết thúc, hoặc khi các bên liên quan quyết định thanh lý hợp đồng trước th...
Th12 10, 2025Thông tin Vingroup làm đường sắt Hà Nội - Quảng Ninh đang tạo nên một cơn sốt thực sự trên thị trườn...
Th12 05, 2025Theo quan niệm tử vi phong thủy, mỗi năm trôi qua sẽ có những con giáp nhận được sự hỗ trợ của các c...