Thiết kế đơn giản gồm mái bằng, gạch nổi terrazzo cùng cửa kính sát trần giúp ngôi nhà thể hiện phong cách tối giản, thanh lịch và hiện đại của nữ chủ nhân. Ngôi nhà được lấy cảm hứng từ lối kiến trúc cũ cùng các thiết kế nhà kính hiện đại của Philip Johnson, tạo nên một tác phẩm kiến trúc độc đáo vượt thời gian.
 |
| Nhà kính Doonan của kiến trúc sư Sarah Waller được thiết kế theo phong cách tối giản với ba màu chủ đạo là đen, trắng, và xanh. Ảnh: Mister Mistress, Paul Smith, Anastasia Kariofyllidis |
 |
| Mục tiêu của Sarah khi thiết kế căn nhà này là xóa nhòa sự ngăn cách giữa không gian bên trong và bên ngoài ngôi nhà, tạo cảm giác thả mình vào thiên nhiên. Ảnh: Mister Mistress, Paul Smith, Anastasia Kariofyllidis |
 |
| Cửa kính phản quang được sử dụng khiến những hàng cây xung quanh in bóng lên ngôi nhà, tạo sự liên kết hài hòa với thiên nhiên. Ảnh: Mister Mistress, Paul Smith, Anastasia Kariofyllidis |
 |
| Những dãy cửa kính trải dài từ trần xuống sàn cùng cửa sổ ở góc hông mang nắng ấm và khung cảnh thiên nhiên xung quanh vào trong ngôi nhà. Ảnh: Mister Mistress, Paul Smith, Anastasia Kariofyllidis |
 |
| Với kết cấu hình chữ L, chủ nhân ngôi nhà có thể tận hưởng cảnh đẹp thiên nhiên bên ngoài từ bất kì vị trí nào trong căn nhà. Nội thất sử dụng ba màu cơ bản là đen, trắng, nâu gỗ, tạo cảm giác sang trọng.. Ảnh: Mister Mistress, Paul Smith, Anastasia Kariofyllidis |
 |
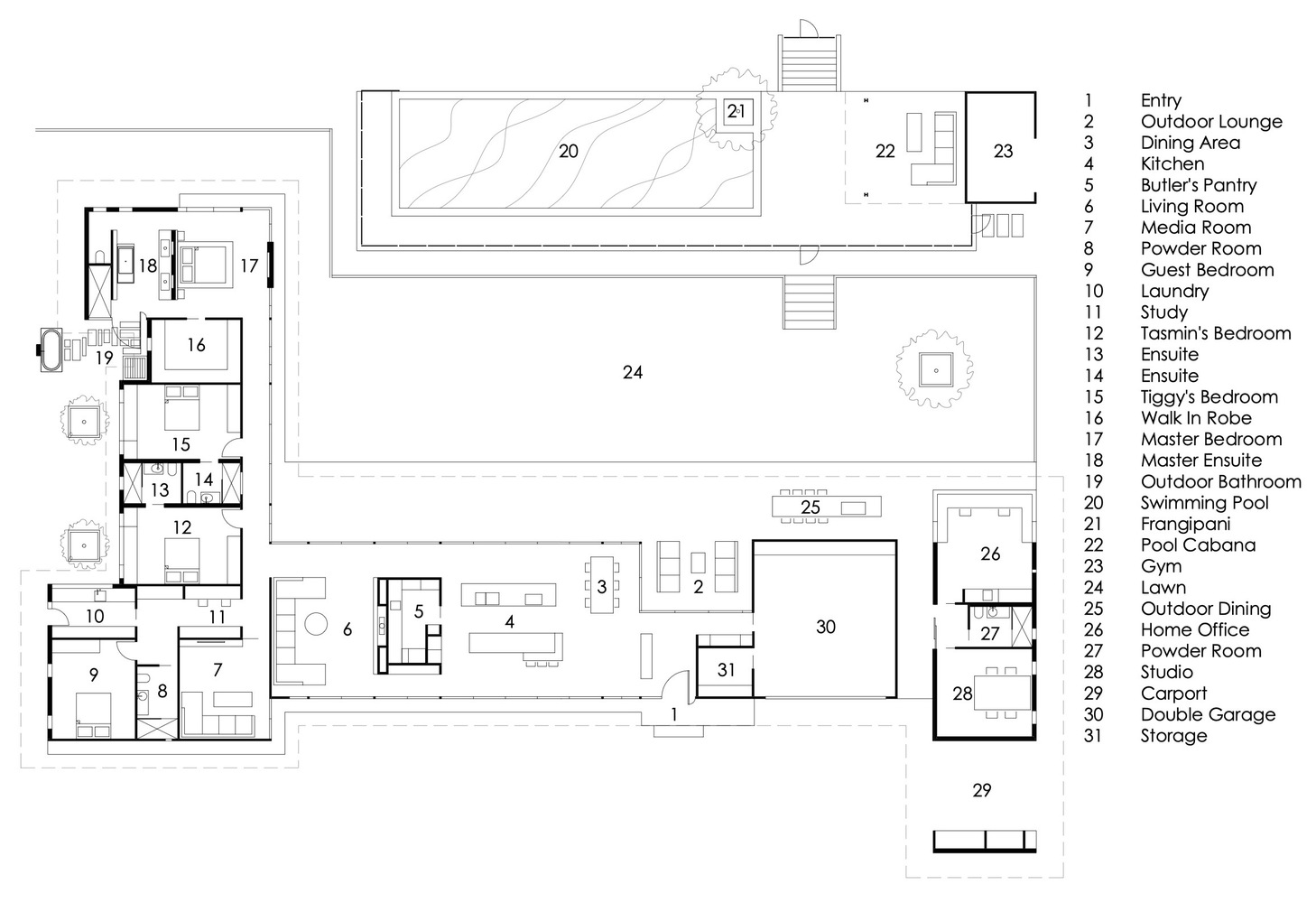
| Ngôi nhà có kết cấu sàn mở, giúp liên kết khu vực bếp, phòng ăn, phòng khách, phòng sinh họat chung cùng 4 phòng ngủ và phòng tắm. |
 |
| Lấy cảm hứng từ những căn biệt thự cổ điển với cây cọ và bể bơi những năm 50, Sarah đã tạo nên một thiết kế ấn tượng kết hợp giữa sự tiện nghi, hiện đại và không gian nghỉ dưỡng. Ảnh: Mister Mistress, Paul Smith, Anastasia Kariofyllidis |
 |
| Một bể bơi rộng 18m2 cùng khu vực ghế nghỉ tắm nắng là vị trí thư giãn hoàn hảo trong những ngày hè, nhất là giữa khung cảnh đầy nắng, gió và màu xanh của hoa cỏ. Ảnh: Mister Mistress, Paul Smith, Anastasia Kariofyllidis |
 |
| Với những thiết kế đơn giản cùng nét chấm phá đến từ dãy cửa kính phản quang, nhà kính Doonan mang nét đẹp thanh lịch, tối giản, điển hình cho phong cách hiện đại. Ảnh: Mister Mistress, Paul Smith, Anastasia Kariofyllidis |
Hoài Thơm