![]() |
| Mảnh đất xây nhà rộng 4x8m, có hình dạng kém vuông, nằm trong một con hẻm nhỏ thuộc quận Phú Nhuận, cửa ngõ ra vào phía Bắc của TP.HCM. Thiết kế nhà nương theo hình dạng đặc biệt của mảnh đất, nhưng bớt lại một phần diện tích phía trước làm sân và ban công, tạo thành khoảng đệm ngăn cách giữa bên trong và bên ngoài nhà. |

Nhà được thiết kế cho gia đình 4 thành viên, gồm 4 tầng: tầng trệt, tầng lửng, 2 lầu và sân thượng.

Cánh cổng ghép từ các tấm gỗ có tông màu đậm, nhạt khác nhau khiến ngôi nhà trông thật ấn tượng.
![]() |
| Hệ lam gỗ che chắn mặt tiền đảm bảo sự riêng tư cho không gian bên trong nhưng vẫn duy trì tính cởi mở, thông thoáng cho ngôi nhà. |
![]() |
| Bếp kế hợp phòng ăn được bố trí ở tầng trệt. |

Phòng bếp mang hơi thở thiên nhiên với tủ gỗ cùng gam màu xanh lá mát mắt.

Nội thất tươi sáng, đầy màu sắc phản ánh lối sống năng động của gia đình trẻ.
![]() |
| Từng khu vực trong nhà đều được thiết kế tối ưu đảm bảo công năng, tính thẩm mỹ cũng như phù hợp với thói quen, sở thích của các thành viên trong gia đình. |

Không gian lưu trữ tích hợp trong gầm cầu thang.

Phòng khách yên tĩnh trên gác lửng.

Phòng ngủ master sử dụng tông trắng chủ đạo, mang lại cảm giác nhẹ nhàng, thư giãn.

Phòng tắm khép kín bên trong phòng ngủ.

Những ô thoáng sắp xếp đầy ngẫu hứng đưa ánh sáng, gió vào sâu trong nhà.

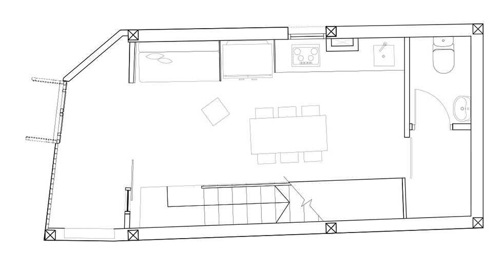
Sơ đồ bố trí mặt bằng tầng trệt.

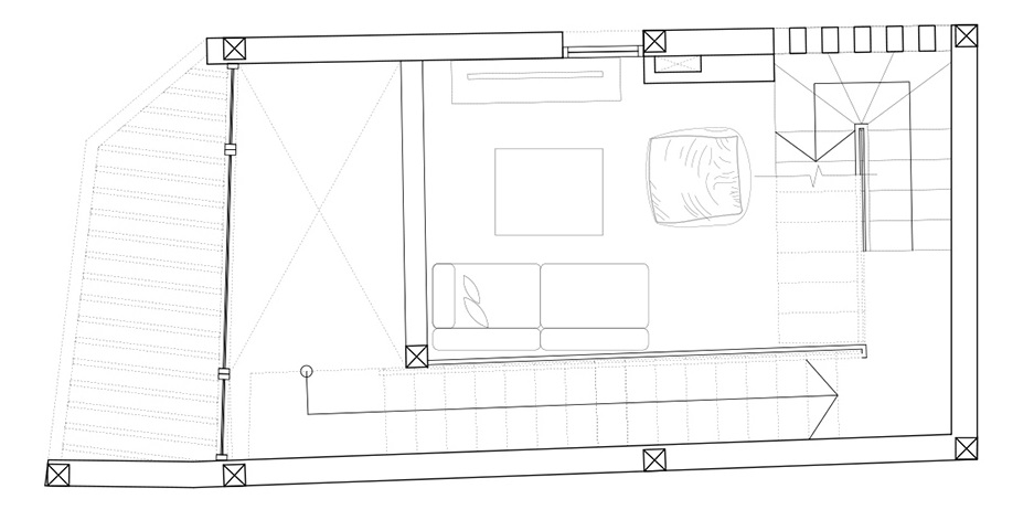
Sơ đồ bố trí mặt bằng tầng lửng.

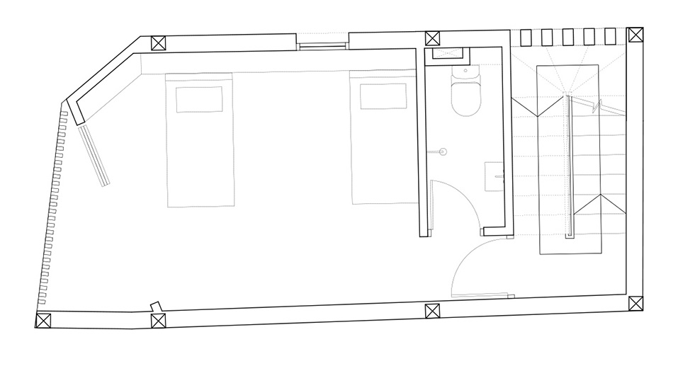
Sơ đồ bố trí mặt bằng lầu 1.

Sơ đồ bố trí mặt bằng lầu 2.

Mặt bằng sân thượng.

Mặt cắt nhà.
Thông tin dự án:
Khánh An
>> Nhà ống 26m2 trong ngõ nhỏ là không gian sống thoáng sáng của gia đình 6 người
Th12 13, 2025Khi một hợp đồng thuê nhà kết thúc, hoặc khi các bên liên quan quyết định thanh lý hợp đồng trước th...
Th12 10, 2025Thông tin Vingroup làm đường sắt Hà Nội - Quảng Ninh đang tạo nên một cơn sốt thực sự trên thị trườn...
Th12 05, 2025Theo quan niệm tử vi phong thủy, mỗi năm trôi qua sẽ có những con giáp nhận được sự hỗ trợ của các c...