Nhìn vẻ ngoài, căn nhà phố này trông khá đơn giản từ kiến trúc đến màu sắc. Nhà được xây trên khu đất rộng 100m2 trong một khu dân cư yên tĩnh tại quận 6, Tp.HCM. Tuy đơn giản, nhưng căn nhà trông vẫn khá nổi bật giữa những ngôi nhà ống xây theo lối thịnh hành những năm gần đây. Đặc biệt, khi vào bên trong, ngôi nhà còn có những thiết kế vô cùng phá cách, thậm chí có hơi hướng “nổi loạn”.

Căn nhà phố này nằm trong một khu dân cư yên tĩnh của Sài Gòn

Vẻ ngoài giản dị đối lập với những thiết kế nổi loạn bên trong.

23o5studio là đơn vị thiết kế căn nhà phố Sài Gòn rất độc đáo này.

Thiết kế ngôi nhà tuy giản dị nhưng lại rất phá cách.

Ngôi nhà có 2 phòng ngủ và nhiều phòng chức năng đáp ứng nhu cầu của gia chủ.

Thiết kế độc đáo của sàn gỗ trên tầng thượng giúp đem ánh sáng xuống tầng hai.

Vật liệu gỗ được nhắc lại nhiều lần trong công trình giúp đem lại cảm
giác ấm áp, tiết chế bớt vẻ lạnh lẽo của vật liệu bê tông.

Các KTS thiết kế công trình này cho biết có thể dùng hai từ khóa chính là
“ánh sáng” và “khoảng trống” để mô tả về căn nhà phố này.

Khác hẳn với những ngôi nhà ống xung quanh, ở ngôi nhà này, khôn gian vô cùng thoáng
đãng. Đây cũng là yêu cầu của vị chủ nhà ưa thích sự sáng tạo.

Không gian làm việc đón rất nhiều ánh sáng tự nhiên vào ban ngày.
Các thiết kế nội thất đều tối giản nhưng độc đáo

Thiết kế cũng rất hài hòa với khu vực làm việc vốn đòi hỏi sự yên tĩnh.

Phía sau bàn làm việc là một khu wc nhỏ tiện cho gia chủ trong sinh hoạt.

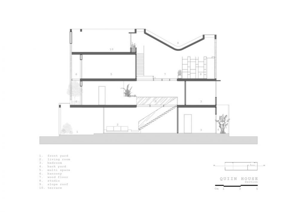
Mặt cắt ngang công trình của căn nhà phố Sài Gòn
Th12 13, 2025Khi một hợp đồng thuê nhà kết thúc, hoặc khi các bên liên quan quyết định thanh lý hợp đồng trước th...
Th12 10, 2025Thông tin Vingroup làm đường sắt Hà Nội - Quảng Ninh đang tạo nên một cơn sốt thực sự trên thị trườn...
Th12 05, 2025Theo quan niệm tử vi phong thủy, mỗi năm trôi qua sẽ có những con giáp nhận được sự hỗ trợ của các c...