![]() |
| Qua quá trình quan sát thói quen sinh hoạt của các thành viên trong nhà cũng như điều kiện sẵn có tại khu vực (có cây xanh, có ánh nắng sớm mai), kiến trúc sư quyết định tận dụng cây xanh ở mặt tiền vừa để giảm khói bụi, tiếng ồn, vừa để kiểm soát lượng ánh sáng đi vào nhà mỗi ngày. |
![]() |
| Hệ thống khung bê tông che phủ toàn bộ mặt tiền lên tới mái nhà khiến thiên nhiên trở thành một phần quan trọng trong việc điều chỉnh chất lượng cuộc sống, ở đó, ánh sáng và gió trời mang đến sự thoải mái cho cư dân và sức sống cho cây xanh. |
![]() |
| Kiến trúc sư tập trung vào các khoảng trống linh hoạt nhằm sắp xếp các hoạt động liên tục giúp liên kết các không gian cho phù hợp với gia đình Á đông truyền thống. Tầng trệt được đẩy lùi về phía sau để bố trí sân để xe và tạo khoảng đệm ngăn cách giữa đường phố với không gian sinh hoạt. |

Thiết kế bếp mở tạo ra sự chuyển tiếp giữa bên trong và bên ngoài.
![]() |
| Phòng của bà nội ở tầng 1 có tầm nhìn rộng mở để quan sát mọi hoạt động của các thành viên trong gia đình, nơi đây cũng đón nhận được ánh nắng mặt trời vào mỗi buổi sáng. |
![]() |
| Tầng 2 gồm phòng khách, phòng ngủ của con và góc học tập. |

Góc tiếp khách được bố trí ở phía trước để tận dụng ánh sáng tự nhiên và tầm nhìn ra khoảng vườn nhỏ.
![]() |
| Không gian học tập của các con được mở rộng từ phòng ngủ. Nhờ đó, cha mẹ có thể dễ dàng trông chừng con cái khi đang tiếp khách. |

Không gian phía trước phòng ngủ của cha mẹ kết nối với phòng khách phía dưới thông qua khoảng thông tầng.

Phòng ngủ của cha mẹ.
![]() |
| Sân sau của phòng ngủ cha mẹ được sử dụng làm khu giặt phơi và nhà vệ sinh. Giếng trời kết nối sân sau và tầng thượng thúc đẩy thông gió cho các khu vực ẩm ướt bên dưới. |
![]() |
| Tầng trên cùng gồm phòng thờ, sân thượng và vườn trồng rau. |

Khoảng vườn nhỏ cung cấp rau tươi sạch cho những bữa cơm gia đình.
![]() |
| Ngôi nhà giống như một cấu trúc sống động, là nơi diễn ra các hoạt động có liên quan chặt chẽ với nhau thông qua các không gian đóng, mở. Ở đây, không gian sinh hoạt chung được mở rộng từ không gian riêng tư của mỗi tầng tạo ra nhiều không gian hoạt động cho cư dân, đồng thời tăng cường tần suất gặp gỡ giữa mọi người trong nhà. |

Sơ đồ bố trí mặt bằng ngôi nhà.

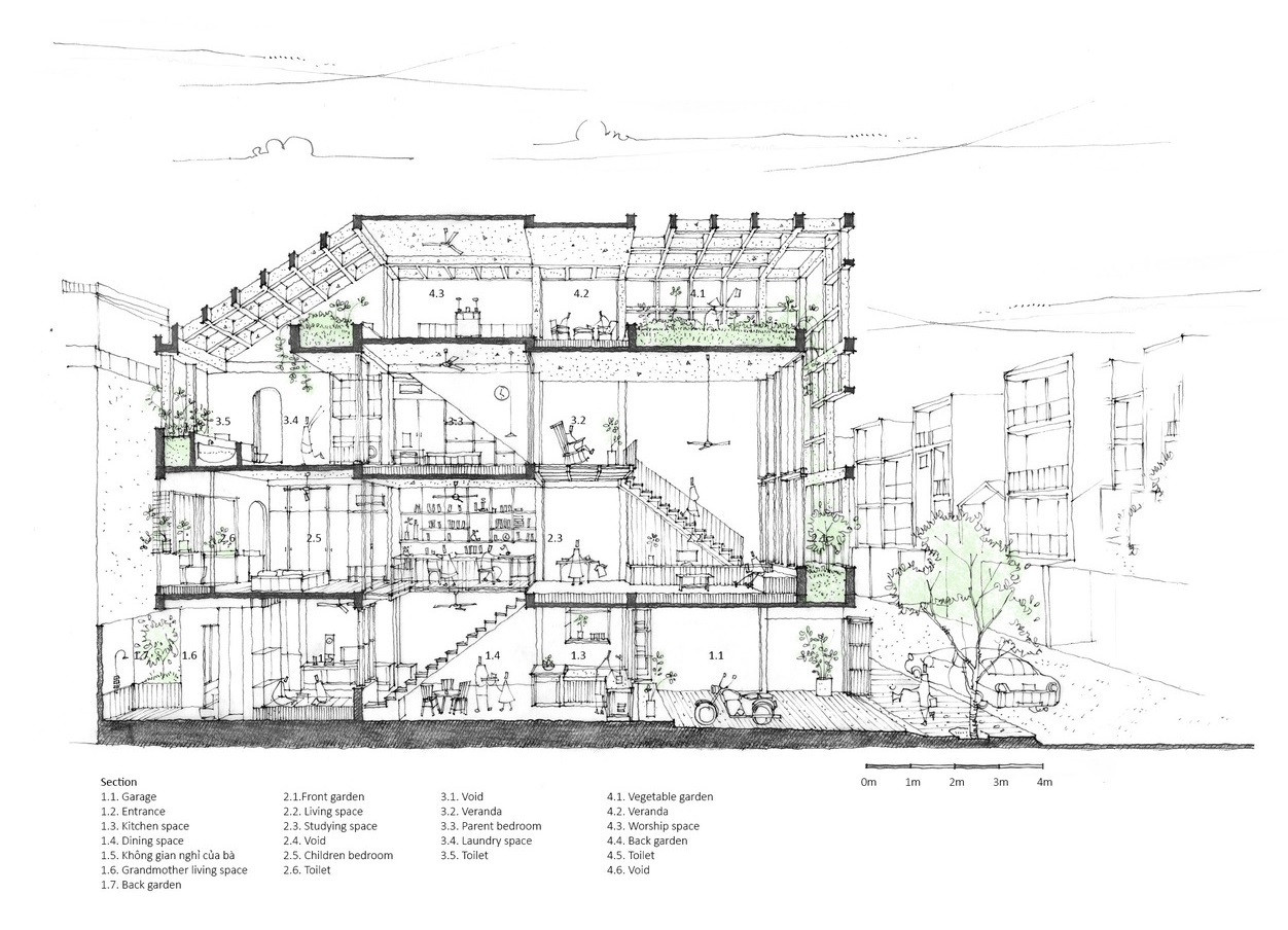
Mặt cắt nhà.
Thông tin dự án:
Khánh An
>> Nhà ống 32m2 xây trên đất méo vẫn đẹp và thoáng đến lạ
Th12 13, 2025Khi một hợp đồng thuê nhà kết thúc, hoặc khi các bên liên quan quyết định thanh lý hợp đồng trước th...
Th12 10, 2025Thông tin Vingroup làm đường sắt Hà Nội - Quảng Ninh đang tạo nên một cơn sốt thực sự trên thị trườn...
Th12 05, 2025Theo quan niệm tử vi phong thủy, mỗi năm trôi qua sẽ có những con giáp nhận được sự hỗ trợ của các c...