Căn hộ 3 phòng ngủ thuộc tòa chung cư cao cấp ở Mỹ Đình (Hà Nội) có diện tích thông thủy 96m2 được thiết kế khá vuông vắn, công năng hợp lý nên dễ bố trí nội thất. Tuy nhiên, bức tường và tủ giày chắn ngay lối vào gây cản trở tầm nhìn, đồng thời khiến căn hộ bị chia tách. Do vậy, kiến trúc sư đề xuất phá bỏ phần tường và tủ giày để hợp nhất các không gian.

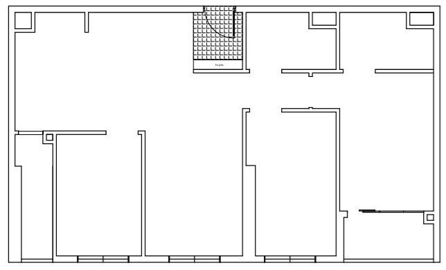
Mặt bằng hiện trạng căn hộ 3 phòng ngủ.

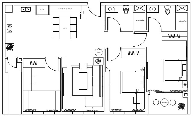
Mặt bằng bố trí nội thất.
![]() |
| Gỗ óc chó tối màu được sử dụng tối đa cho nhiều hạng mục trong căn hộ này, từ sàn, tủ, kệ cho tới nội thất rời… mang tới cảm giác sang trọng, ấm áp. |
![]() |
| Việc loại bỏ bức tường ngăn nơi cửa ra vào giúp cho phòng khách được thông thoáng hơn. |
![]() |
| Gia chủ cũng có thể khoe khéo không gian tiếp khách sang trọng với bất cứ ai khi vừa bước chân vào cửa nhà. Bức tranh ghép đá Brazil cao cấp trở thành điểm nhấn hút mắt trong không gian này. |
![]() |
| Góc tiếp khách được đặt ở vị trí đẹp nhất trong nhà, ngay cạnh cửa sổ nhằm tận dụng tối đa ánh sáng tự nhiên. Gam màu trắng từ mảng tường tivi ốp đá và từ hệ tủ bếp trên có nhiệm vụ giảm bớt cảm giác nặng nề do chất liệu gỗ mang lại. |
![]() |
| Phòng ngủ phụ có diện tích khiêm tốn nhưng được bố trí hợp lý kết hợp cùng các chi tiết màu trắng và tủ cánh kính trong suốt nên không gây cảm giác bí bách, khó chịu. |

Mảng tường ốp đá xám lạ mắt.
![]() |
| Trong phòng ngủ chính, vách gỗ ốp đầu giường kết hợp kính đen làm tăng phần sang trọng và cảm giác rộng rãi cho căn phòng. |
![]() |
| Thủ pháp thiết kế này tiếp tục được lặp lại ở phía tường đối diện. |
KTS. Nguyễn Quang Đạt
Công ty tư vấn thiết kế – thi công kiến trúc nội thất CentiHome
Link báo gốc: http://thanhnienviet.vn/2019/11/25/thiet-ke-can-ho-3-phong-ngu-theo-phong-cach-sang-trong-hien-dai
Th12 13, 2025Khi một hợp đồng thuê nhà kết thúc, hoặc khi các bên liên quan quyết định thanh lý hợp đồng trước th...
Th12 10, 2025Thông tin Vingroup làm đường sắt Hà Nội - Quảng Ninh đang tạo nên một cơn sốt thực sự trên thị trườn...
Th12 05, 2025Theo quan niệm tử vi phong thủy, mỗi năm trôi qua sẽ có những con giáp nhận được sự hỗ trợ của các c...