Từ những thông tin và yêu cầu như trên của chủ đầu tư, KTS đưa ra phương án tư vấn thiết kế nhà phố, 2 phòng ngủ trên đất 100m2 như sau:

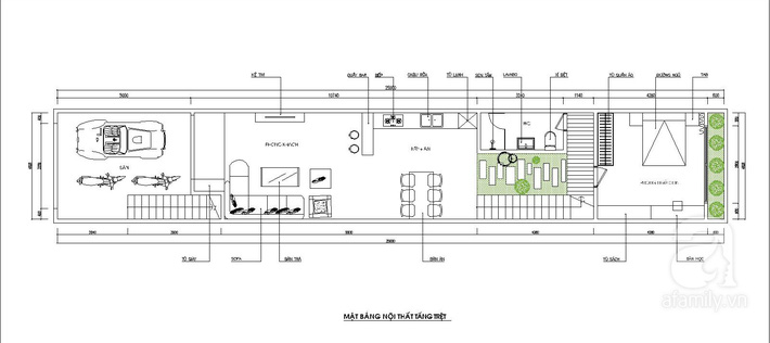
Bản vẽ kỹ thuật mặt bằng tầng trệt ngôi nhà phố hiện đại

Bản vẽ kỹ thuật mặt bằng tầng 1 ngôi nhà phố hiện đại
Ngôi nhà phố, 2 phòng ngủ được thiết kế theo phong cách hiện đại với 3 gam màu chủ đạo là: trắng, đen và xanh lam. Đây là những màu thuộc hành Thủy, hợp với mệnh của gia chủ sinh năm 1982, giúp bổ sung nguồn năng lượng, thu hút cát khí và mang lại may mắn cho chủ nhân.
Tầng trệt của nhà phố thiết kế không gian mở với phòng khách, bếp và 1 phòng ngủ nhỏ. Bước qua cổng chính là khoảng sân lớn với một cầu thang ngoài trời dẫn lên sân thượng. Giữa nhà, bố trí một giếng trời, giúp ngôi nhà thêm sáng và thoáng. Ngoài ra, tại đây còn thiết kế một tiểu cảnh, cây xanh vừa có tác dụng làm mát không gian, vừa tạo thành điểm trang trí mềm mại cho ngôi nhà.
Tầng 1 sẽ bố trí phòng ngủ của bố mẹ với diện tích lớn, sân phơi và khoảng sân thượng rộng rãi

KTS đã sử dụng màu xanh lam và đen làm gam màu chủ đạo cho phòng khách. Đối diện với sofa
chữ L là bức tường được dán giấy màu xanh có gắn vách kệ ti-vi. Chiếc ghế tựa màu vàng
bên phải trở thành điểm nhấn ấn tượng cho khu vực tiếp khách.

Khoảng giữa của ngôi nhà thiết kế phòng vệ sinh, thang và lối đi vào phòng ngủ con trai

Một quầy bar nhỏ được thiết kế tạo thành điểm phân chia không gian bếp ăn
và phòng khách một cách tinh tế

Hệ tủ bếp được thiết kế hiện đại gọn gàng với gam màu xám chủ đạo. Hai chiếc ghế đỏ
bên phải tạo thành điểm nhấn ấn tượng cho không gian nấu nướng.

Khu vực ăn uống của gia đình được bố trí gọn vào một góc nhà với bộ bàn ăn màu trắng,
hợp mệnh Thủy của gia chủ

Phòng ngủ của con thiết kế hiện đại với giường, tủ, bàn học thông minh kết hợp ngăn kéo,
tạo thuận tiện trong sinh hoạt và tiết kiệm được diện tích

Bố trí hệ cây xanh ở khu vực giếng trời, giúp không gian thêm phần tươi mát

Phòng vệ sinh thiết kế đơn giản những không kém phần hiện đại, tiện ích với đồ nội thất
màu trắng, nội bật trên nền sàn gỗ và tường xám màu

Phòng ngủ của bố mẹ thoáng, sáng nhờ thiết kế hệ cửa sổ kính lớn. Mảng tường xám đầu giường
giúp làm nổi bật chiếc giường với ga, gối màu trắng cũng hệ kệ lưu trữ sáng màu.

Sân thượng của ngôi nhà phố thiết kế rộng rãi với nhiều cây xanh, bố trí bàn trà
và sofa để làm nơi thư giãn cho cả gia đình
Th12 13, 2025Khi một hợp đồng thuê nhà kết thúc, hoặc khi các bên liên quan quyết định thanh lý hợp đồng trước th...
Th12 10, 2025Thông tin Vingroup làm đường sắt Hà Nội - Quảng Ninh đang tạo nên một cơn sốt thực sự trên thị trườn...
Th12 05, 2025Theo quan niệm tử vi phong thủy, mỗi năm trôi qua sẽ có những con giáp nhận được sự hỗ trợ của các c...