Biệt thự siêu sang từ nhà máy xi măng bị bỏ hoangTh05 02, 2025
Biệt thự siêu sang từ nhà máy xi măng bị bỏ hoang

Năm 1973, KTS Ricardo Bofill đã mua lại một nhà máy xi măng cũ ở gần thành phố Barcelona (Tây Ban Nh...

Đọc thêm
Hối hận vì góp tiền mua nhà đất với người thânTh05 02, 2025
Hối hận vì góp tiền mua nhà đất với người thân

Sau khi chuyển về ngôi nhà mình mua chưa đầy một năm, anh Bảo (Tp.HCM) đã cảm thấy mệt mỏi vì nhà qu...

Đọc thêm
Cấp GCN muộn, chủ đầu tư có thể bị phạt 10 triệu đến 1 tỷ đồngTh05 02, 2025
Cấp GCN muộn, chủ đầu tư có thể bị phạt 10 triệu đến 1 tỷ đồng

Nếu chậm làm thủ tục cấp giấy chứng nhận cho người mua nhà, tùy vào mức thời gian, chủ đầu tư dự án...

Đọc thêm
Yêu cầu xử nghiêm việc xẻ đất công bán trái thẩm quyền ở Hưng YênTh05 02, 2025
Yêu cầu xử nghiêm việc xẻ đất công bán trái thẩm quyền ở Hưng Yên

Phó Thủ tướng Thường trực Trương Hòa Bình yêu cầu UBND tỉnh Hưng Yên khẩn trương kiểm tra, làm rõ nộ...

Đọc thêm
4 mẫu thiết kế nhà đẹp mắt trong những bộ phim mùa Oscar 2017Th05 02, 2025
4 mẫu thiết kế nhà đẹp mắt trong những bộ phim mùa Oscar 2017

Đây là những căn hộ, ngôi nhà được lấy bối cảnh để dựng nhiều cảnh quay ấn tượng trong các bộ phim n...

Đọc thêm
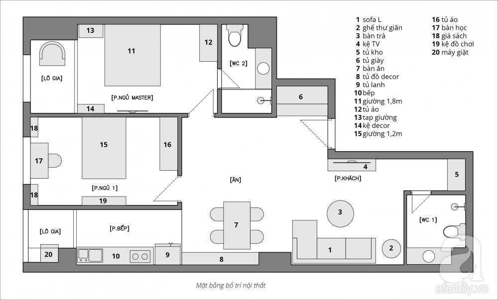
Tư vấn bố trí nội thất cho căn hộ 100m² với chi phí 200 triệuTh05 02, 2025
Tư vấn bố trí nội thất cho căn hộ 100m² với chi phí 200 triệu

Chúng tôi sắp nhận căn hộ rộng 100m² gồm phòng khách và bếp thông nhau, 2 phòng ngủ đều có hệ sửa sổ...

Đọc thêm
Lắp đặt ngôi nhà 200 triệu chỉ trong 24 tiếng với một chiếc cờ lêTh05 02, 2025
Lắp đặt ngôi nhà 200 triệu chỉ trong 24 tiếng với một chiếc cờ lê

Một căn nhà cho gia đình nhỏ gồm bếp, phòng khách, 2 phòng ngủ và 1 phòng tắm được các công nhân xây...

Đọc thêm
Tp.HCM: Hồ sơ nhà đất "tắc" vì chưa có hệ số KTh05 02, 2025
Tp.HCM: Hồ sơ nhà đất "tắc" vì chưa có hệ số K

Sau hơn 2 tháng, hệ số điều chỉnh tiền sử dụng đất (hệ số K) tại Tp.HCM vẫn chưa được ban hành theo...

Đọc thêm
Hà Nội: Duyệt mở rộng quy mô sân golf quốc tế Đảo Vua thêm 18 hố golfTh05 02, 2025
Hà Nội: Duyệt mở rộng quy mô sân golf quốc tế Đảo Vua thêm 18 hố golf

Mới đây, UBND TP. Hà Nội đã ban hành quyết định phê duyệt quy hoạch chi tiết xây dựng tỷ lệ 1/500 mở...

Đọc thêm
Tp.HCM: Đánh giá lại năng lực chủ đầu tư tại KĐT mới Thủ ThiêmTh05 02, 2025
Tp.HCM: Đánh giá lại năng lực chủ đầu tư tại KĐT mới Thủ Thiêm

Văn phòng Chính phủ đề nghị UBND Tp.HCM đánh giá năng lực nhà đầu tư, khả năng huy động vốn để thực...

Đọc thêm
Gần 37.000 hồ sơ mua nhà, đất giấy tay tại Tp.HCM cần được cấp sổ đỏTh05 02, 2025
Gần 37.000 hồ sơ mua nhà, đất giấy tay tại Tp.HCM cần được cấp sổ đỏ

Tại cuộc họp báo quý I của Sở Tài nguyên và Môi trường Tp.HCM ngày 3/3, ông Nguyễn Toàn Thắng, Giám...

Đọc thêm
Căn hộ chỉ 10m2 nhưng vẫn lung linh nhờ cách bố trí nội thất "chuẩn"Th05 01, 2025
Căn hộ chỉ 10m2 nhưng vẫn lung linh nhờ cách bố trí nội thất "chuẩn"

Bạn sẽ xoay xở thế nào để có một cuộc sống thoải mái với ngôi nhà chỉ 10m2. Chủ nhân của căn hộ dưới...

Đọc thêm
https://web.facebook.com/anphatland.com.vn
https://www.tiktok.com/@chungcutienich
https://zalo.me/2204319189419912916
0901411555